- AJ Tuotteet
- Blogi
- Työympäristö
- Mainostoimisto kokeili: Valitse työpiste työtehtävän mukaan
Mainostoimisto kokeili: Valitse työpiste työtehtävän mukaan

On tunnettu asia, että työympäristöllä on merkitystä sille, miten voimme töissä. Voiko oikea sisustus myös tehdä meistä luovempia ja tehokkaampia sekä parantaa työntekijöiden yhteistyötä?
Rakensimme modernin toimiston valokuvastudioomme. Sitten pyysimme Treative-viestintätoimistoa tekemään töitä toimistossa yhden päivän ajan.
Vaihtelua ja vapautta
”Tee töitä siellä missä aivot haluavat, ei siellä missä oma työpöytäsi on.” Aktiviteettipohjaisessa toimistossa työpiste valitaan työtehtävän mukaan. Lähdimme liikkeelle avoimesta huoneesta, johon rakennettiin monta erillistä työtilaa. Eri toimintojen ansiosta työntekijä voisi siten vaihtaa paikkaa eri työpisteiden välillä. Lisäksi panostimme hyvään valaistukseen ja äänimaisemaan. Värit valittiin tarkkaan ja tilaan lisättiin myös hieman leikkisä ilmapiiri, joka kannustaisi myös taukojen pitämiseen.
Tila suunniteltiin kokonaisuudessaan niin, että työntekijä voisi tehdä töitä tehokkaasti siellä, missä olisi paras paikka senhetkiseen työtehtävään. Joko yksin tai ryhmässä, välillä seisten ja välillä nojatuolissa istuen - tai puolittain maaten säkkituolissa.

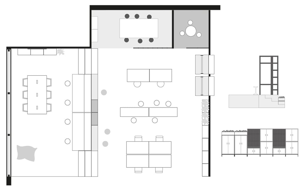
Testitoimiston suunnitelma. Toimisto rakennettiin studioomme.
Ensivaikutelma oli VAU!
Kuusi viestintätoimiston työntekijää saapuivat aamulla AJ:n pääkonttorille. Heidät ohjattiin valokuvastudioon, jonne olimme rakentaneet testiversion aktiviteettipohjaisesta monitoimitilasta. Ensivaikutelma oli hyvä: Olimme onnistuneet rakentamaan toimistoympäristön, joka positiivisesti yllätti heidät.
- Ajattelin vain, että VAU, sanoo Louise Lejestrand, perustaja, osaomistaja och brändiasiantuntija Treativella. Olin vaikuttunut siitä, kuinka monta eri toimintoa saa mahtumaan niin pieneen tilaan.
Monta erilaista työpistettä
Työpäivä aloitettiin ja kaikki löysivät mieluisen työpisteen eri vaihtoehdoista. Osa työntekijöistä meni seisomaan korkeussäädettävien pöytien äärelle avoimeen tilaan, joka oli sijoitettu henkilökohtaisten tavaroiden säilytyskaappien viereen. Osa meni sivummalle erillisille työpöytäpaikoille, jotka oli toteutettu erikoisratkaisuna Combo-hyllyjärjestelmästä.
- Tuntui hyvältä istua siinä, kun oli paljon tavaroita ympärillä. Se oli vähän kuin pitäisi lippalakkia päässä, sanoo AD Calle Lindell hymyillen. Lisäksi kokolattiamatto teki äänimaisemasta hyvän.
Lisää työpisteitä oli Callen työpisteen takana. Tilassa oli pitkä neuvottelupöytä, joka oli osittain tarkoitettu perinteisiin kokouksiin ja osittain ”benchingille”, eli sille että tehdään töitä vierekkäin istuen omilla läppäreillä.
 
Haluatko sinäkin toimistokalusteet joilla luovuus pääsee valloilleen? Tutustu monipuolisiin kalusteisiimme >>
Paras ympäristö aivoriihille
Vähän ajan kuluttua ryhmä kerääntyi seisomaan neuvottelupöydän äärelle yhteen kokoustiloista. Tilaan oli valittu seinien väriksi intensiivinen keltavihreä luovuutta herättelemään. Pian luovuus pääsikin valloilleen. Toimiston työntekijät tekivät töitä asiakkaan tehtäväannon kanssa, ja ideoita sateli.
– Kalustus – ja itse asiassa koko tilan energia hienoine väreineen yhdessä seinälle kiinnitettyjen kirjoitustaulujen kanssa - tuntui vapauttavalta. Tila oli ehdottomasti paras paikka aivoriihelle, sanoo Maria Sanchez, digiasiantuntija. Seisominen lisää selvästi luovuutta, ja aiomme jatkossakin tehdä näin myös omassa toimistossamme - myös asiakastapaamisissa.
Kuin tehty spontaaneille juttutuokioille
Avoin Combo-hyllyjärjestelmä toimi hyvin tehokkaana tilanjakajana. Combo oli sijoitettu kahden työpöytäryhmän väliin avoimeen tilaan sekä benching-pöydän ja sisäänrakennettujen työpöytien väliin.
Testitoimistossamme oli myös tilaa spontaaneille juttutuokioille. Kahvinkeitin oli avoimessa Combo-hyllyssä, joten siihen pääsi käsiksi kahdesta suunnasta. Siitä tulikin luonnollinen seurustelupaikka, joka kannusti lyhyisiin taukoihin ja jutteluun. Hyllytasolle oli myös laitettu shakkipeli, jota pelattiin jaksoissa koko päivän ajan. Sivuttain hyllyn vieressä oli pitkä istuinpenkki, jossa oli alla säilytystilaa ja edessä pienet rahit jalkatuiksi tai pöydiksi läppäreille.
Osa työntekijöistä haluaa tehdä töitä hiljaisessa tilassa
Neljäs ja viimeinen tila oli hiljainen huone, joka oli tarkoitettu yhden työntekijän käytettäväksi, tärkeille puheluille tai kahdenkeskisille kokouksille. Tekoruoho seinällä ei ollut vain leikkisä lisä, vaan sen tarkoitus oli myös vaimentaa ääntä. Lisäksi vihreä väri on rauhoittava. Täällä oli hyvä tehdä töitä, kun ei halunnut tulla häirityksi.
– Ensin menin tavallisen pöydän ääreen, koska olen tottunut siihen, sanoo Lars Sörqvist, toimitusjohtaja ja osaomistaja. Mutta kun hiljainen huone vapautui menin sinne. Oli mukava istua siellä yksin ja kirjoittaa vähän aikaa. Tilan pieni koko oli hyvä. Pidän siitä, että voin vaihdella työympäristöä tarpeen mukaan.
Inspiroiva ja onnistunut luovan työn toimisto
Treativin työntekijät tekivät töitä tehokkasti testitoimistossa koko päivän. Lisäksi he ehtivät vastaamaan kysymyksiimme siitä, mitä he pitivät työympäristöstä. Palautteesta päätellen näyttää siltä, että toimisto täytti tehtävänsä.
– On ollut todella kivaa, yksi hauskimmista päivistä pitkään aikaan, kertoo Louise Lejestrand. Osittain siksi, että teimme jotain hauskaa yhdessä, ja osittain siksi, että saimme niin monta uutta ideaa. Nyt menemme kotiin ja laitamme oman toimistomme kuntoon.
Kiitämme Treativea osallistumisesta, mukavasta seurasta ja palautteesta. Me AJ:lla viemme päivän opetukset käytäntöön ja rakennamme jatkossa yhä parempia työympäristöjä.
 
Haluatko sinä myös tehdä tehokasta työtä toimistossa, jossa luovuus pääsee valloilleen ja yhteistyö on helpompaa? Ole yhteydessä projektimyyjiimme, niin saat tarvittaessa apua kaiken kanssa – aina kalustusratkaisusta valmiiseen toimistoon asti >>
Lisää kommentteja päivästä:
– Hyvä, että on kaksi erilaista kokousympäristöä, yksi perinteisempi ja yksi luovempi. Joel Lindberg, AD
– Korkeussäädettävät työ- ja neuvottelupöydät ovat hyviä. En ole juurikaan istunut tänään. Flutra Halili, some-asiantuntija
– Liikkuminen tuo vauhtia päivään ja lisää tehokkuutta. Ei ole keskittymisvaikeuksia vaan kova draivi. Calle Lindell, AD
– Työssämme värit ovat tärkeitä. Joten nyt maalaamme oman toimistomme uusiksi ja viestimme siten vielä paremmin, että olemme viestintätoimisto. Maria Sanchez, digiasiantuntija
– Valintamahdollisuudet lisäävät tehokkuutta. Hyvä, että pystyy liikkumaan vaivattomasti tilassa ja auttaa monien eri projektien kanssa päivän aikana. Lars Sörqvist, toimistojohtaja
– Ensivaikutelma on tärkeä alallamme. Olemme tänään saaneet monta ideaa sen parantamiseen. Louise Lejestrand, brändiasiantuntija


